Rental Space Event Resources

There are about a million logistics that go into planning the perfect event! Let’s take off the stress from the beginning. Explore to view floor plans, our most commonly asked questions, and more. Have a question? Get in touch below.

Explore what Revelry has to offer.

Explore our spaces

Tucked in a city building on Park Avenue, our urban space provides so many opportunities for your event design.

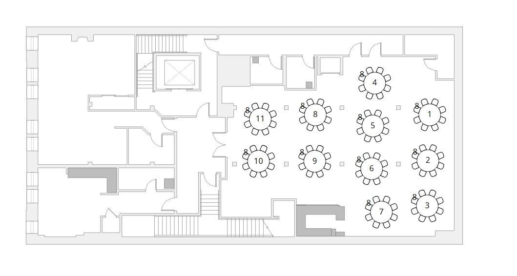
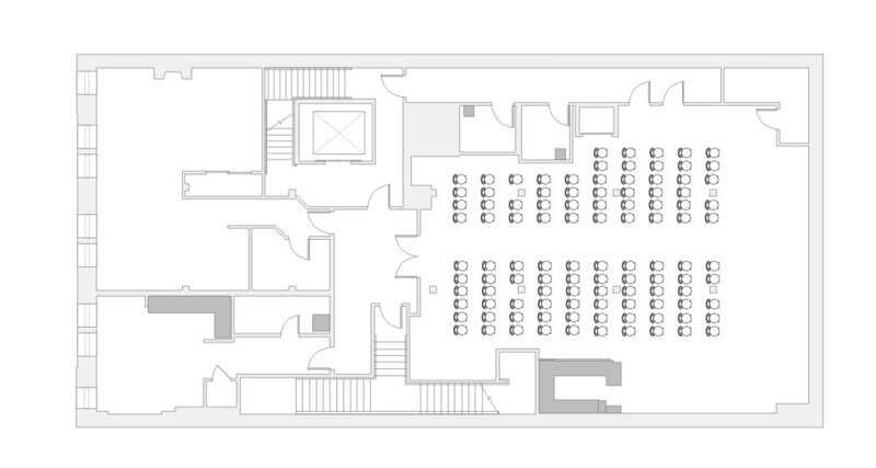
Define your floor plan and seating chart.

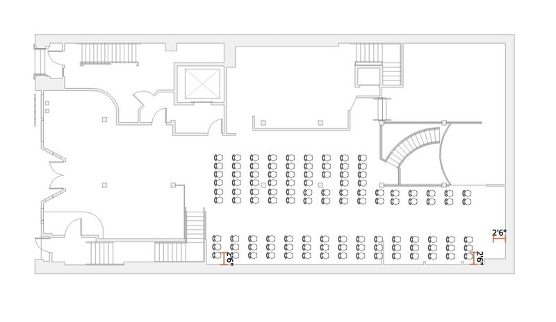
Main Floor Seating Reception Capacity: 150 or 140 if a dance floor is needed.
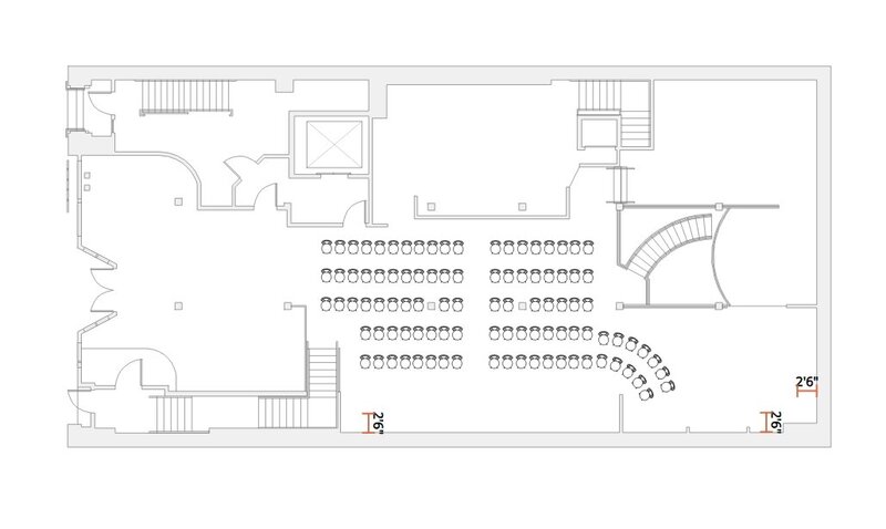
Main Floor Ceremony Capacity: 130
Cocktail type event: 200

Upstairs reception capacity: 88
Upstairs ceremony capacity: 88
Cocktail type event: 120

Check out our recommended floor plans and seating charts for the space, for ceremonies, gathering, and receptions.

main floor max capacity

main floor ceremony capacity options

second floor ceremony capacity

second floor max capacity

first floor layout

basement floor plan

second floor

reception capacity floor plan

bridal suite layout

Yes! We do request that you hire at least a day-of coordinator to ensure that your day goes well.

Frequently Asked Questions

Do I need to hire a wedding coordinator?

Additional hours can be arranged for an extra $300 per hour for corporate events or $400 per hour for weddings.

Can we add on extra hours for venue access?

Please get in touch via our website contact form, or send an email to: Jayme@twinvinesfloral.com

How can we reserve your space for our event?

No, you are welcome to use who you would like for your catering services, but they must be licensed and insured, and vetted by the venue, to ensure the best experience for all. We do have a list of preferred caterers that we've worked with and highly recommend.

Do you have required caterers?

Yes! We have two spacious getting ready suites available for use on your wedding day.

Do you have getting ready suites?

We recommend that you hire a bartender from our preferred vendors list, but you are welcome to hire who you want for this service, as long as they are licensed and insured, and have been vetted by the venue.

What is your bar/alcohol policy?

Main Floor Seated Reception Capacity: Up to 150 (140 if a dancefloor is needed).
Main Floor Ceremony Capacity: 130
Cocktail Type Event: 200

Upstairs Seated Reception Capacity: 88
Upstairs Ceremony Capacity: 88 
Cocktail Type Event: 120
Basement Lounge Area: 45 standing (such as for cocktail hour)

What is your capacity for guests?

If possible, we recommend using rideshare as parking around Revelry Park Avenue can be tough. *Will include a map with nearby parking garages*

What is the parking situation?

For weddings, we do not schedule more than one wedding per day. For corporate events, we may host an event in each of the 2 main event spaces. Please inquire so we can understand your guest count and event needs!

Do you host more than one event per day?

In order to get your ideal date, the sooner you're able to book, the better!

How far in advance should we book?

Unless otherwise arranged, we ask that all events conclude by 10pm, with vendors cleaned up and out of the space by 11pm.

What time does our event need to end? Is there a curfew?

Events in our second floor space must conclude by 9:30pm to respect the tenants above, but there are no noise ordinances on our main floor event space.

Do you have any noise ordinances?

Let’s make your event one that you’ll never forget.

inquire with us

We strive to create a phenomenal experience for you and your guests, from your first step through the door to your grand exit. Get in touch with us so you can tell us about your vision, and we can plan an event that is uniquely you.


“As a wedding coordinator I love that Revelry Park offers beautiful details and in house tables and chairs, while also being a canvas for each couple to create their own dream day!

I had the pleasure of working with Revelry Park Avenue this fall, and the experience couldn't have been better. Their communication was amazing and made the planning process so easy. Thier space was stunning, and while intimate, had modern touches through out the venue. ”

-Juliana